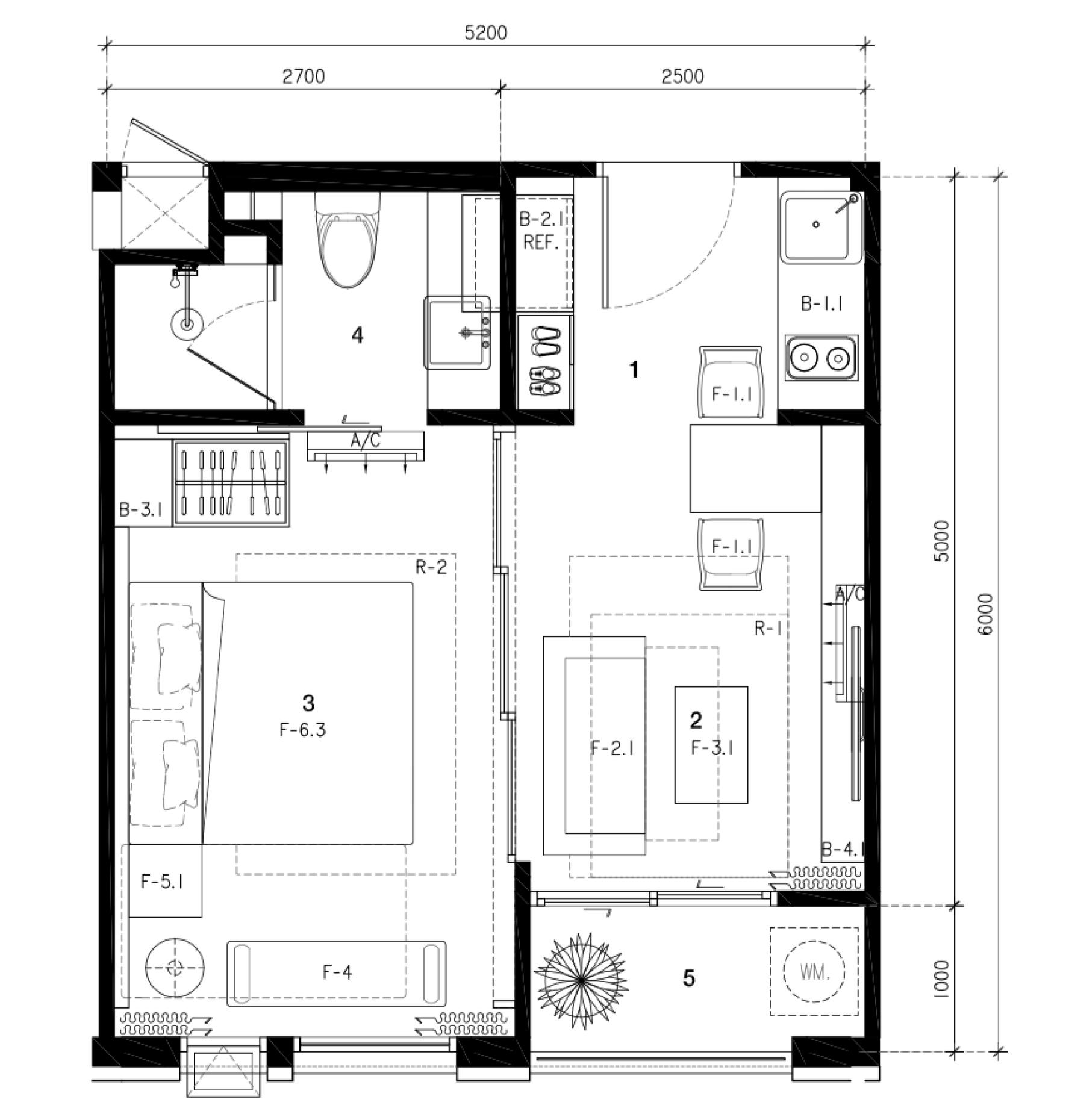
标准开间 31m²
度假房 托管 海景房
装修标准: 精装修
物业类型: 联排别墅
参考总价: ¥86万(泰铢:436万)
参考首付: ¥30.2万
户型解读: 体验与阿里斯托公寓,卡隆质量生活的感觉 海滩。 •精美的定制设计室,为您提供便利设备齐全。 •享受投资安心的阿里斯托租赁计划。 •品尝安达曼海和卡伦的壮丽景色,并配有度假式服务。 令人惊叹的水族馆 海景无边泳池 天空酒吧和屋顶花园 高档休闲休息区 四周无边泳池 2户外用餐区 2个健身中心 图书馆 温泉 越野车服务 家具齐全 私人泳池单位 24小时保安与接待 机场摆渡车 停车场 免费WiFi 厨房柜台和水槽 厨柜和储物柜 电炉和敞篷 电视台和餐桌 柜下的柜子 钢化玻璃在浴室 鞋柜 热水器 淋浴头 空调 衣柜&架子
建筑面积: 31m²
+66 82 903 8881